S'inspirerRénoverAcheter/Vendre

Sloft x Cosentino – The Bathelier Challenge

Que la plus belle salle de bains gagne ! Et c'est à vous de décider.

ÉTAPE 4 - LA SOIRÉE D'INAUGURATION

La soirée d’inauguration de la salle de bains gagnante du concours Sloft x Cosentino – The Bathelier Challenge a eu lieu le 23 janvier dernier. À cette occasion, nous avons reçu dans le showroom de la marque, situé au 27 boulevard Malesherbes à Paris, une centaine d’architectes, designeuses et designers pour un moment festif avec au programme :
 
– La révélation de la salle de bains gagnante réalisée in situ

– La présentation des deux autres projets finalistes

– Un DJ set et un cocktail
 
Retour en images :

Le projet vainqueur du concours : Les Pierres Sauvages par Potentiel Architecte.

Le grand gagnant : Pierre Boutet, architecte et fondateur de Potentiel Architecte. Retrouvez son interview ici.

Jean Desportes, rédacteur en chef de Sloft Magazine et Anthony Glories, Directeur général de Cosentino France, tous les deux membres du jury, rappellent le contexte du concours et félicitent les finalistes.

Après les discours, place aux rencontres et aux échanges dans une ambiance groove, emmenée par la djette MelC.

L’événement est aussi l’occasion pour l’assistance de découvrir les deux autres projets finalistes présentés de manière exhaustive à travers des installations mêlant planches & matériauthèques dans le showroom…

… ainsi que les différentes gammes Cosentino.

ÉTAPE 3 – RÉVÉLATION DES TROIS FINALISTES


Les plus belles salles de bains ont gagné !


Nous avons le plaisir de vous révéler les noms des 3 finalistes de notre concours. Ils ont été choisis par vous lors du vote du public parmi les 6 pré-finalistes élus par le jury.

CA Architecture d’Intérieur avec le projet « Évasion Au Jardin Émeraude »

Mardi Archi avec le projet « Scènes de Bains »

Potentiel Architecte avec le projet « Les Pierres Sauvages »

Et l’aventure ne s’arrête pas là, nous vous donnons rendez-vous en janvier afin de découvrir le podium d’arrivée lors d’un cocktail au showroom Cosentino à Paris. Vous pourrez y découvrir la salle de bains gagnante construite in situ par les équipes Cosentino et les deux projets finalistes présentés sous forme d’exposition. Au programme : du beau, du bon et des bulles. Inscrivez-vous en cliquant ici pour cette soirée autour de l’architecture d’intérieur et des belles matières !

ÉTAPE 2 – LE VOTE DU PUBLIC


Désignez les 3 projets finalistes du concours parmi les 6 pré-finalistes ci-dessous.


Le concours – rappel :


Sloft x Cosentino The Bathelier Challenge propose aux architectes, designers et designeuses de transformer une pièce au centre du showroom parisien de Cosentino en salle de bains en utilisant les références matières de la marque.
 
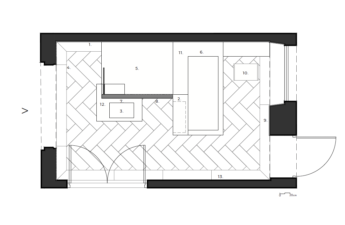
L’axonométrie de la pièce à transformer :

Projet 1 : Scène de bains


Ce projet de salle de bains met en avant un monolithe central noir autour duquel le visiteur circule, structurant l’espace et guidant l’expérience sensorielle et visuelle. Il explore un jeu de contrastes entre verticalité et horizontalité, ainsi que la dualité des matières et des couleurs, avec l’eau comme protagoniste principal. Scènes de bains dans une salle de bains.
 
Par mardi archi

Projet 2 : EAU-FORTE


Inspirée d’un procédé de gravure révélant la matière par contraste et finesse, EAU-FORTE se dresse comme une pièce sculpturale et fonctionnelle au cœur du showroom. Ses volumes affirmés et ses matériaux contrastés créent une expérience immersive, où chaque surface s’harmonise dans une composition équilibrée.
 
Par Mesnil Architectures

Projet 3 : Milky Arty


Cette salle de bains se transforme en sanctuaire où l’art et le soin du corps se rencontrent, créant un espace intime dédié à la sérénité et à la contemplation. 

Les revêtements texturés COSENTINO offrent une richesse tactile et visuelle, invitant à l’apaisement et à l’émerveillement.
 
Par Craie Craie

Projet 4 : Aqua Monolitha


Aqua Monolitha s’élève au centre de la pièce comme un autel dédié au rituel du soin de soi. Les éléments et les matériaux fusionnent pour inviter à un moment de pause, où une composition contemporaine s’unit à la spiritualité d’un lieu intime, redéfinissant ainsi l’art de vivre autour du rituel personnel.
 
Par Studio Muraczewski

Projet 5 : Évasion Au Jardin Émeraude


Évasion au Jardin Émeraude vous entraîne dans une salle d’eau raffinée, sublimée par les matériaux nobles des collections Silestone et Dekton. Cet espace sensoriel, conçu comme un rituel en trois actes, vous invite à passer de la découverte à un retour apaisant à soi dans un écrin chic parisien, avant de s’ouvrir sur une élégance intemporelle mêlée de lumière naturelle.
 
Par CA ARCHITECTURE D’INTÉRIEUR

Projet 6 : Les Pierres Sauvages


Qu’elles soient figées ou en mouvement, lisses ou rugueuses, froides ou bien chauffées par le soleil, Les Pierres Sauvages expriment le matériau à l’état pur.

Dépourvu de tout artifice, ce projet pose le cadre des possibles, nous renvoyant à l’harmonie et la force brute de la nature.
 
Par Potentiel Architecte

ÉTAPE 1 – L’INSCRIPTION AU CONCOURS


Sloft x Cosentino – The Bathelier Challenge


 
Des salles de bains de Madeleine Castaing imaginées comme de véritables boudoirs avec fauteuils et guéridons aux blocs fonctionnalistes en résine pop et sans chichis de Charlotte Perriand, la salle de bains a toujours constitué un exercice de choix pour les designers.
Comment articuler enjeux sanitaires et imaginaire ? Hygiène et bien-être ? Les réponses sont aussi différentes que la personnalité de leurs conceptrices et concepteurs, oscillant entre le minimalisme le plus radical ou au contraire l’onirisme le plus enchanteur.
Sloft Magazine et Cosentino ont eu envie de permettre aux architectes, designeuses et designers de la communauté Sloft d’exprimer leur vision de cette pièce aussi intime qu’utile au travers d’un concours qui permettra aux lauréats de présenter leur réflexion in situ dans le showroom de la marque, Boulevard Malesherbes à Paris et de bénéficier d’une belle visibilité dans l’écosystème Sloft et Cosentino.

À propos de Cosentino :


Le Groupe Cosentino est une entreprise familiale mondiale qui produit et distribue des surfaces innovantes à haute valeur ajoutée pour l’architecture et le design. En tant qu’entreprise leader, Cosentino imagine et anticipe, en collaboration avec ses clients et partenaires, des solutions de conception multiple (revêtements mural, sol, plan vasque receveurs, mobilier). Ce but est rendu possible par des marques pionnières qui sont des leaders dans leurs segments respectifs, telles que Silestone®, Dekton®, qui permettent la création d’environnements et de designs uniques pour l’intérieur comme pour l’extérieur.

L’enjeu :


Transformer une pièce au centre du showroom parisien de Cosentino en salle de bains en utilisant les références matières de la marque.

Le principe :


1. Vous vous inscrivez via le formulaire d’inscription accessible ici (https://tally.so/r/3yyWPx).
 
2. À la suite de votre inscription vous recevez un email avec toutes les informations nécessaires à la bonne réalisation de votre projet de salle de bains : les contraintes à respecter, les éléments attendus à ajouter dans le dossier final, le calendrier, etc.
 
3. Une fois que votre projet est finalisé et que votre dossier final est constitué, vous le déposez sur la plateforme de soumission dont vous recevrez le lien par email.
 
4. Votre proposition est examinée par le jury du concours qui sélectionnera 6 finalistes. Et parce que chacun a un avis sur la salle de bains, c’est ensuite un vote du public qui permettra de départager les trois projets gagnants.
 
5. La présentation des trois projets gagnants aura lieu pendant une soirée en janvier 2025 organisée dans le showroom Cosentino !

Les prix :


Pour les 6 projets finalistes sélectionnés par le jury  :

  • La médiatisation des concepteurs et de leurs propositions dans les écosystèmes digitaux de Sloft et Cosentino

  • La présentation des projets lors d’un événement afterwork organisé chez Cosentino à Paris

  • Un voyage de 3 jours en Espagne pour visiter le siège et les usines de Cosentino ainsi que la carrière de marbre d’Alméria


Pour les trois premiers : Une présentation de leurs projets sur le site de Cosentino sous la forme d’un case study
 
Pour la médaille de bronze et la médaille d’argent : La présentation de leurs projets dans le showroom de Cosentino pendant deux mois à partir de janvier 2025 sous la forme d’un board.
 
Pour la médaille d’or :

  • La réalisation (montage) de son projet in-situ et son exposition pendant un an dans le showroom Cosentino. Cette exposition sera accompagné d’un cartel présentant le projet et son concepteur.

  • Une invitation au C-Next designers edition qui aura lieu à Almeria en Octobre 2025 : un événement de trois jours qui rassemble des professionnels de toute l’Europe en Andalousie, le berceau de Cosentino.

  • Une interview publiée sur le site de Sloft Magazine


Le jury :


Le jury est composé de Anthony Glories, Directeur général de Cosentino France, Cristina Hernan Mateos, Interior Designer Manager de Cosentino Monde et de Jean Desportes, le Rédacteur en chef de Sloft Magazine.

Le calendrier :


30 septembre 2024 : Clôture des candidatures
 
18 octobre 2024 : Annonce des 6 projets finalistes sélectionnés par le jury
 
Du 18 au 27 octobre : Campagne de vote du public
 
Janvier 2025 : Annonce des résultats finaux du concours lors d’une soirée dédiée dans le showroom de Cosentino

Le règlement :


Le réglement du concours est accessible ici.

Que la plus belle salle de bains gagne !


PS : Si vous avez des questions, des remarques, un problème avec les formulaires ou besoin de préciser certaines choses, nous vous invitons à nous contacter à l’adresse suivante : concours@sloft-magazine.com