Leur recherche d’appartement à Madrid durait depuis un moment déjà, quand Carlos et Aleks sont tombés sur une petite annonce avec une unique photo, floue et mal cadrée. « On y voyait une balustrade en fer forgé, avec une forme incurvée intéressante qui lui donnait une touche moderniste. On s’est dit qu’il pouvait y avoir un petit trésor derrière », explique Carlos. Il n’avait pas tort. L’appartement, situé à quelques pas d’Atocha dans le quartier de Palos de la Frontera, de plus en plus animé,
« était un diamant brut de 70 mètres carrés avec
cinq balcons donnant sur la rue ».
Carlos est architecte (fondateur d’EstudioReciente) et Aleks journaliste spécialisé en architecture d’intérieur et design. Ils savaient donc ce qu’ils voulaient : « En plus d’un prix raisonnable, nous avions besoin de quelque chose que nous pourrions transformer (sans remords), qui serait comme un laboratoire d’idées. »
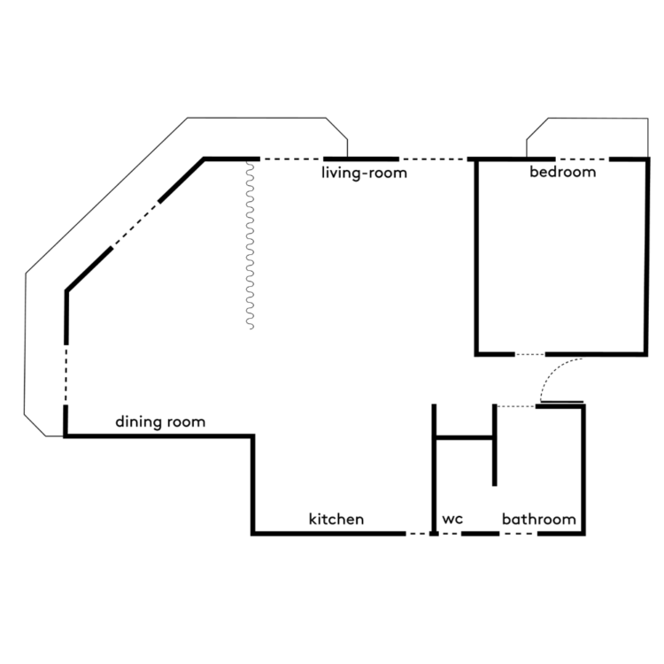
Au troisième étage de cet immeuble d’angle des années 1920 aux allures de château, ils découvrent un appartement compartimenté typique de l’époque. « Après l’avoir mis à nu, nous avons privilégié sa fonction sociale, en réunissant la salle à manger, le salon et la cuisine en une pièce de 45 mètres carrés », raconte Carlos.
Le destin de l’appartement était sur le point de changer.
« Malgré le style régionaliste de la façade, le projet s’est inspiré de la maison Sonneveld (Rotterdam, 1930).
J’ai toujours aimé son utilisation des couleurs et des matériaux », poursuit Carlos. Bleu dans la salle de bains, jaune pour les piliers métalliques, vert dans le sol en mortier de chaux et rouge profond pour le grand rideau qui sépare la salle à manger du salon. Vous avez peur de la couleur ? Pas eux, et ça fonctionne !
« Je suis reconnaissant à Carlos d’avoir eu l’idée de ne pas intégrer complètement la cuisine au salon », déclare Aleks. La vie autour des plaques de cuisson est en effet partiellement dissimulée derrière un totem en miroir qui abrite les éléments tels que le réfrigérateur et le garde-manger, et crée une double circulation. « On ne voit que ce qui nous intéresse », dit Carlos. Une belle astuce.
« Malgré l’utilisation de
nombreuses couleurs, le
résultat est équilibré et
dégage une atmosphère
apaisante. »
Tous deux voulaient s’amuser et c’est ce qu’ils ont fait. Ils ont utilisé toutes sortes de matériaux : du cerisier pour les portes qui cachent la salle de bains et deux armoires dans l’entrée, jusqu’aux textiles de la chambre. « Bien que ce ne soit pas courant en Espagne, j’ai toujours voulu avoir de la moquette. C’était une ligne rouge à ne pas franchir », plaisante Aleks. Ou encore les nombreuses plantes de Carlos, qui ont été prises en compte dès le début. « Elles dialoguent également avec les luxuriantes voûtes d’arbres aux fenêtres, le plus grand atout de cet appartement », explique-t-il.
L’ancien propriétaire leur a raconté que l’ensemble du bâtiment avait appartenu, il y a des années, à Doña Manolita, la fondatrice de la loterie la plus connue du pays. Il est clair qu’ici, la chance imprègne les murs.


